VEFA - Appartement T3 centre-historique - Photo 1
1 / 2

VEFA - Appartement T3 centre-historique

Albi (81000)
630 000 €

Description

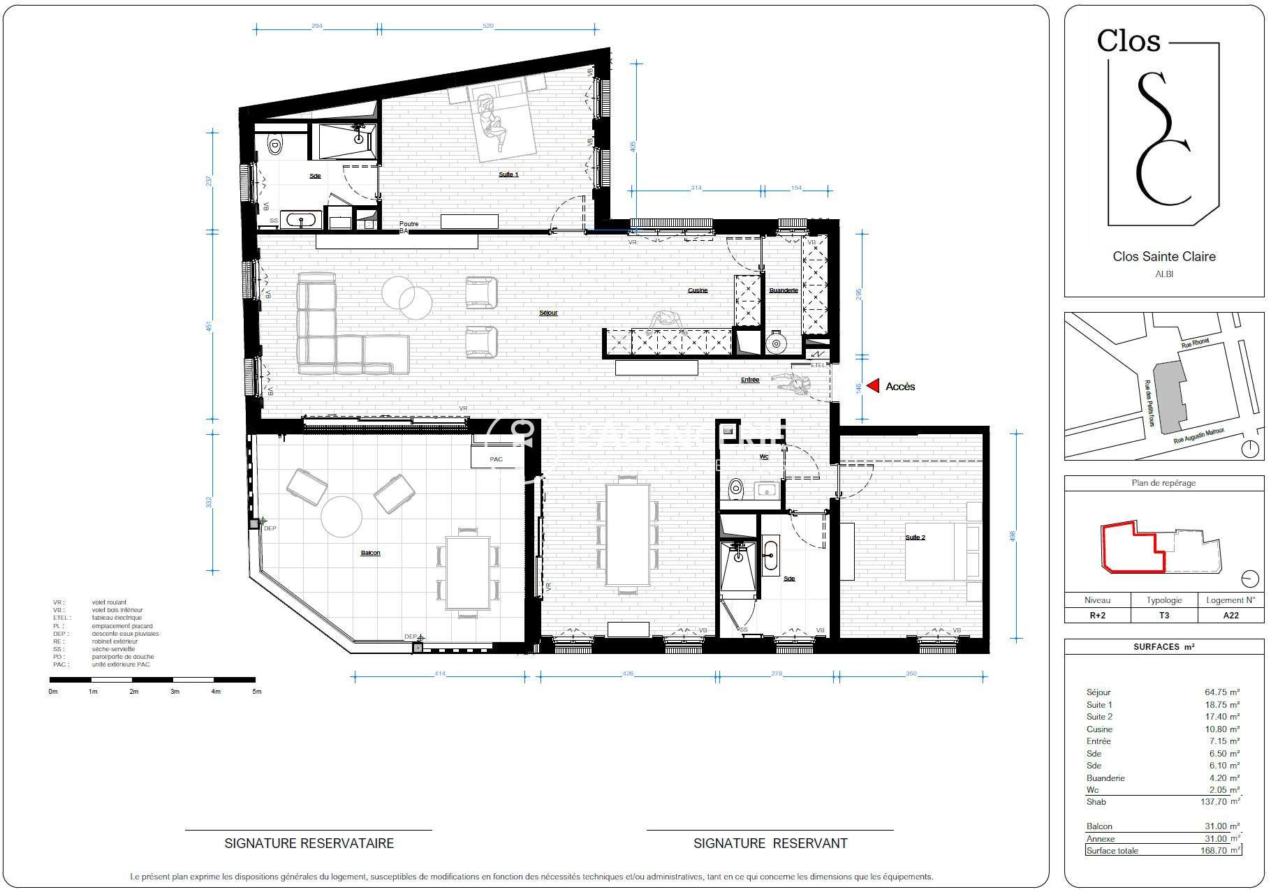
Albi – Cœur historique, cité épiscopale UNESCO Appartement d’Exception – T3/4 de 137 m² avec Loggia de 31 m² Dans une résidence neuve haut de gamme de seulement 8 logements, découvrez cet appartement T3/4 de 137,70 m², situé au 2ᵉ étage avec ascenseur, offrant une exceptionnelle terrasse-loggia couverte de 31 m². Livraison contractuelle au plus tard le 31 décembre 2027 – VEFA. Les points forts: Grande pièce de vie de 65 m² Terrasse loggia couverte de 31 m², exploitable toute l’année Deux chambres, dont :une suite avec salle d’eau et WC privatifs une seconde chambre avec salle d’eau attenante WC indépendant Buanderie Hauteur sous plafond 2,50 m Résidence intimiste et sécurisée Ascenseur – PMR Garages en option Construction neuve RE 2020 Chauffage individuel par climatisation réversible Parquet bois dans les pièces de vie Grès cérame dans les pièces d’eau Menuiseries bois / PVC double vitrage Parties communes et intérieur neufs 🔹 Emplacement À deux pas des Jardins de la Préfecture, du marché couvert, de la place du Vigan et de toutes les commodités du centre-ville, dans un environnement patrimonial d’exception. Frais de notaire réduits Garanties promoteur : décennale & biennale Bien rare sur le marché albigeois Idéal résidence principale ou pied-à-terre de standing Contactez-nous pour plus d’informations et une présentation personnalisée du programme. Carte pro. CPI81012016000011250

Caractéristiques principales

Type de bien
Appartement
Transaction
vente
Pièces
3 pièces
Chambres
2 chambres
Surface habitable
138 m²

Localisation

Localisation

Albi

Albi (81000)

Coordonnées: 43.928688, 2.146901

La localisation affichée est approximative pour des raisons de confidentialité

Performance énergétique

Prix du bien
630 000 €

Référence: zitzd0bdj

Source: netty